Půjčovna jeřábů, jeřábnické práce Velké Meziříčí
Autojeřáb DEMAG AC 70 City
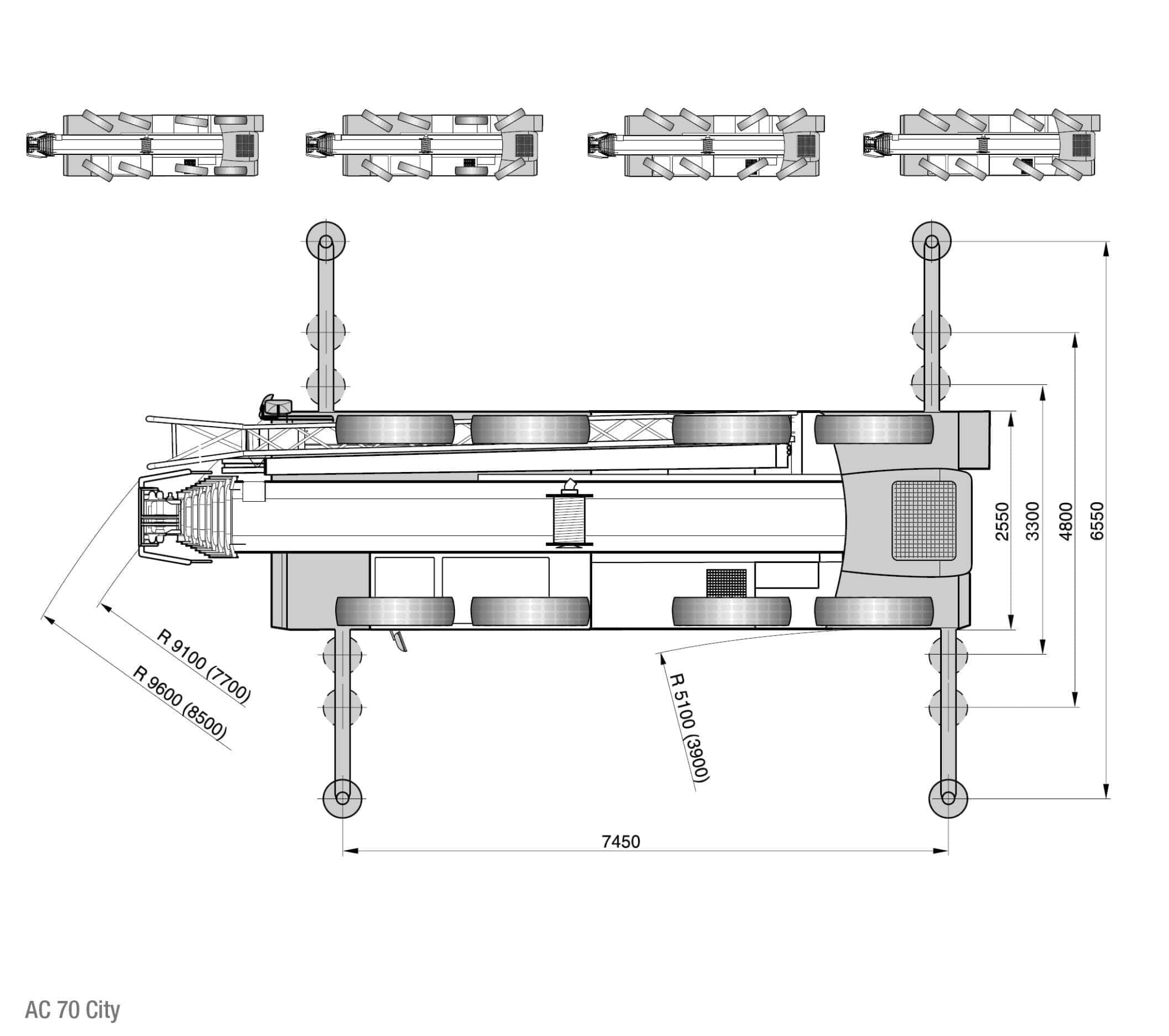
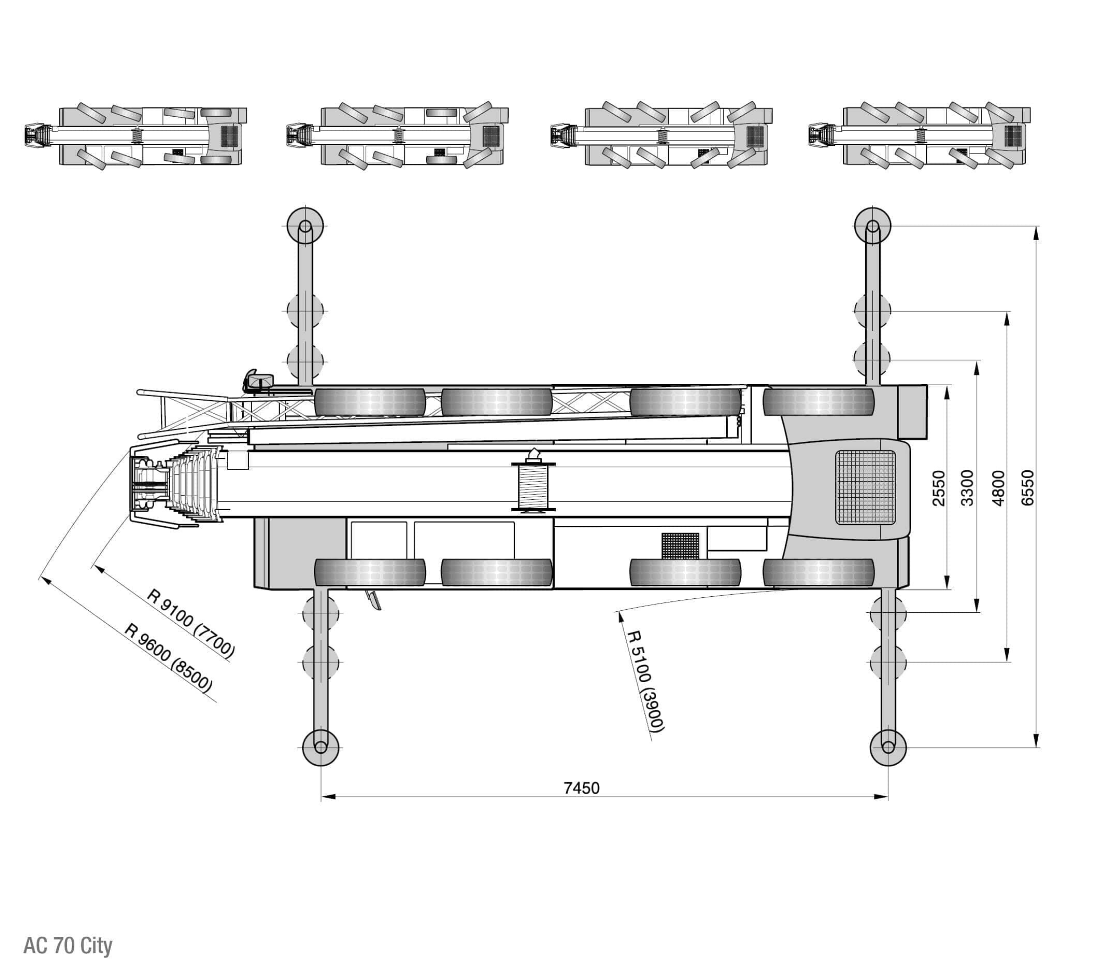
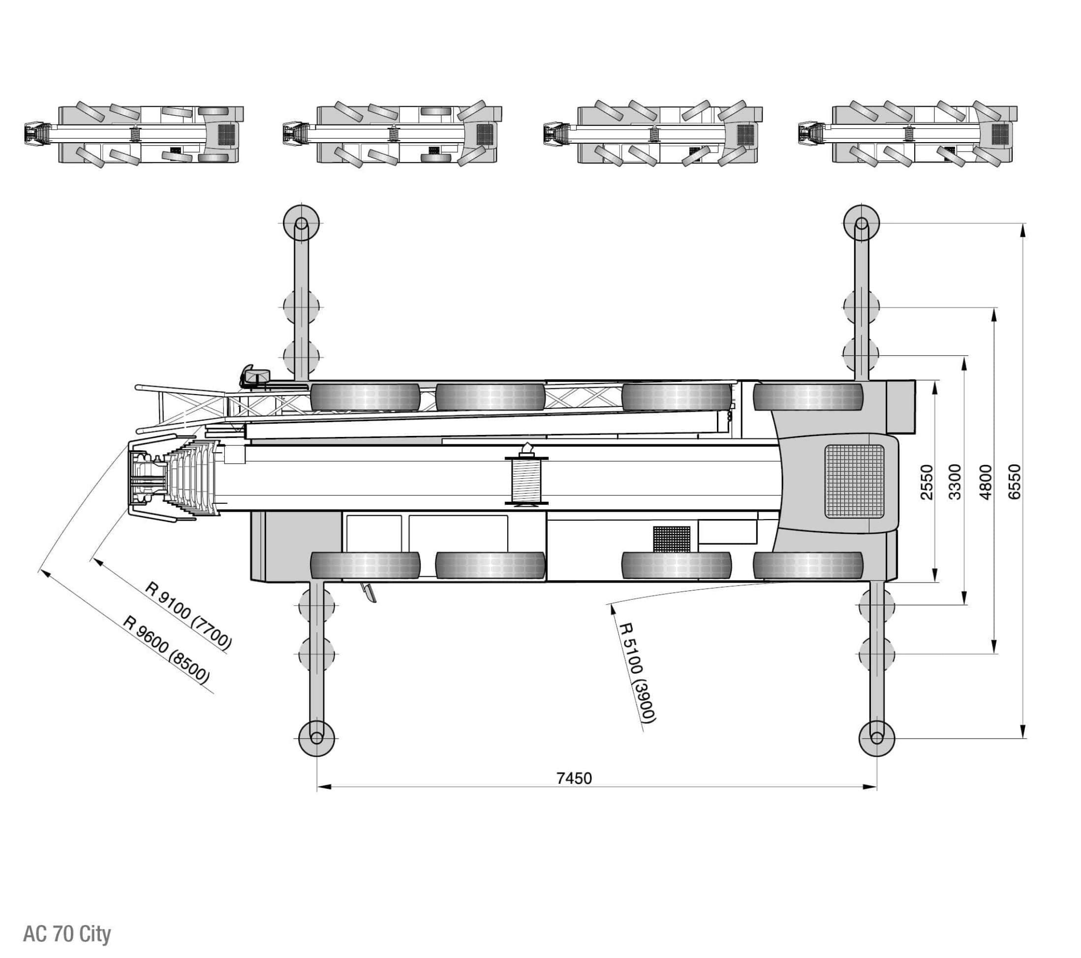
Demag AC 70 je ve své kategorii nejmenší jeřáb co se týče rozměrů, ale zároveň s vyšší nosností (např. 38 t/5 m, 20 t/10 m, 5 t/24 m, 1 t/42 m) a také větším dosahem (teleskop 52 m) než ostatní jeřáby této třídy (většinou 40 m). Další výhodou tohoto jeřábu je integrovaná montážní špička, se kterou lze minimalizovat prostor nad břemenem na 1,8 m při nosnosti 26 t.
Pohled z boku
průjezdní výška, délka
Pohled shora
prostor pro postavení jeřábu
Zdvihová charakteristika
teleskop – diagram
Zdvihová charakteristika
teleskop – tabulka
Podrobnější informační materiály od výrobce
dokument je ve formátu Adobe PDF, k jeho otevření musíte mít nainstalovaný Adobe Acrobat Reader nebo některý alternativní prohlížeč (např. FoxIt PDF Reader)



